
MIL-PRF-19500/557L
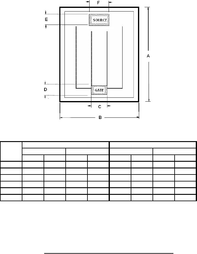
Dimensions - 2N6796
Dimensions - 2N6798
Ltr
Inches
Millimeters
Inches
Millimeters
Min
Max
Min
Max
Min
Max
Min
Max
A
.181
.185
4.60
4.70
.179
.183
4.55
4.65
B
.116
.120
2.95
3.05
.114
.118
2.89
2.99
C
.032
.034
.81
.86
.028
.030
.71
.76
D
.017
.019
.43
.48
.018
.020
.46
.51
E
.024
.026
.61
.66
.024
.026
.61
.66
F
.035
.037
.89
.94
.033
.036
.84
.91
NOTES:
1. Dimensions are in inches.
2. Millimeters are given for general information only.
±.
3. Unless otherwise specified, tolerance is 005 inch (0.13 mm).
4. The physical characteristics of the die are: The back metals are chromium, nickel, and silver and
the back contact is the drain. The top metal is aluminum.
±.
5. Die thickness is .015 inch (0.38 mm) 001 inch (0.025 mm).
FIGURE 4. JANHCB and JANKCB (B-version) die dimensions for 2N6796, 2N6798.
5
For Parts Inquires call Parts Hangar, Inc (727) 493-0744
© Copyright 2015 Integrated Publishing, Inc.
A Service Disabled Veteran Owned Small Business